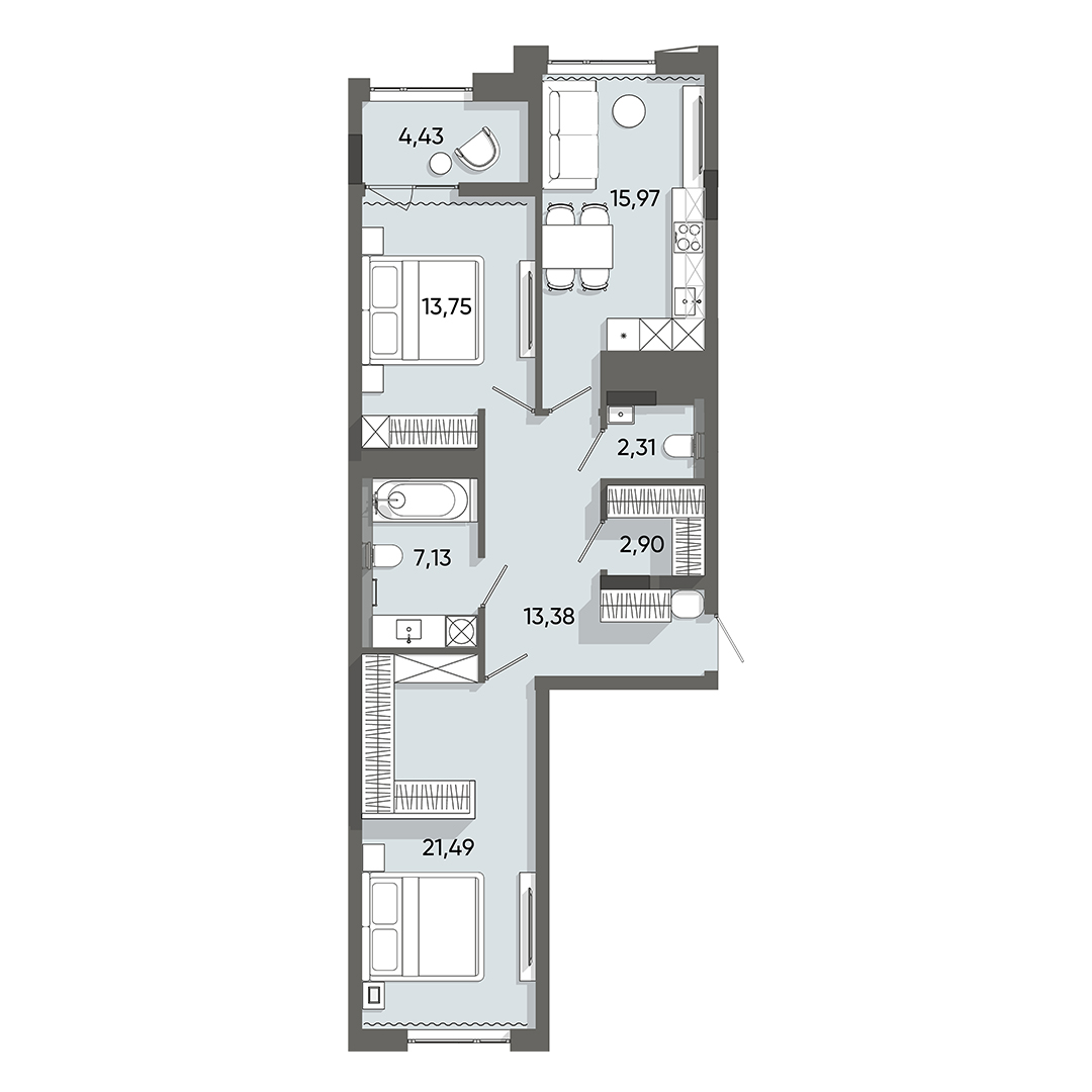
Квартира 83

Загальна площа 81.36 м²
Житлова площа 35.24 м²
К-сть кімнат 2
Поверх 2
Секція State С1.3
Вартість за м² 1 200 $

Розтермінування

ЦІНА ОБ'ЄКТА 97 632 $
ПЕРШИЙ ВНЕСОК 0 $
30% 90%
ТЕРМІН MAX 24 МІС.
6 міс 24 міс
Місячний платіж
0 $
Загальна вартість (орієнтовно)
0 $
Річна ставка
0 %

Менеджер ознайомить вас з більш детальною інформацією.

Про ЖК Resident State

Сихівський район, поруч Арени Львів

Поєднує динаміку міського життя з близькістю до природи та озера. Простір доповнює Resident Club — для комфорту, приватності й спільноти мешканців.

Клас
Бізнес клас
Адреса
вул. Мікльоша 43

Контакти

Залиште свої контакти – менеджер зв'яжеться з Вами.

    Або зв'яжіться з нами будь-яким зручним для Вас способом:

    Номер телефону +38 (097) 202 52 52
    Відділ продажів вул. Садова 2е

    Купити двокімнатну квартиру №83 в Resident State

    Квартира №83 в житловому комплексі Resident State може зацікавити покупців, яким потрібен простір у районі, що зараз активно забудовується. Завдяки достатній площі тут зручно облаштувати побут родини, виділивши окремі зони під робоче місце чи куточок для спокійного проведення часу. Сам квартал спроєктовано так, аби закривати більшість щоденних запитів майбутніх власників майже не виходячи за територію.

    Оскільки двокімнатна квартира №83 входить до розділу активного будівництва, то відкривається можливість придбати нерухомість на вигідних умовах із розтермінуванням. Проєкт передбачає закриту від автомобілів прибудинкову зону, власні комерційні приміщення та надійний підземний паркінг, здатний виконувати функцію укриття. Зважаючи на довгострокову перспективу, купити двокімнатну квартиру у Львові саме зараз — це вигідне рішення

    Для більш зваженого вибору ми зазвичай радимо переглянути інші двокімнатні планування з тих, що залишилися у продажу, а також звернути увагу на житлові проєкти безпосередньо у Сихівському районі. Такий підхід дасть змогу співставити ціноутворення та специфіку локацій, щоб врешті зупинитися на нерухомості, яка найближче відповідатиме вашим планам на проживання або здачу в оренду.